PR

15畳LDKは狭い?4人家族+二世帯でも「壁付けキッチン」で広く暮らす。元プロが教える失敗しない間取り術

15.1畳のLDKでも広く暮らす間取りの工夫。壁付けキッチンと大きな窓で開放感を演出した注文住宅のリビング実例。 注文住宅の成功術

「家族4人暮らし(うち1人は義祖母)という世代を超えた二世帯住宅でLDKが15畳って狭いのか?」

結論から言うと「工夫なしでは間違いなく狭い。けれど、戦略的な間取りなら大家族でも驚くほど開放的に暮らせる」 というのが、元土地活用営業マンであり、自らもLDK15.1畳の家を建てている私の答えです。

この記事では、現在、第一子を育てながら、夫と共に「義祖母同居で4人暮らし15畳LDK」を絶賛建築中の私が、以下のポイントを徹底解説します。

  • なぜ「アイランドキッチン」を捨てて「壁付けキッチン」にしたのか?(有効面積を最大化する秘策)
  • 大家族のプライバシーを守る「廊下」の意外な効果
  • 1.5畳のパントリーが、15畳LDKを救う理由
  • 子供が増えても「狭い」と感じさせない、視線と光のコントロール術

大切なのは何畳と言う数字ではなく、家族全員が窮屈さを感じずにリラックスして過ごせる空間作りと距離感です。

\ 理想の距離感で「わが家の正解」を見つけよう /

【無料】理想の間取りプランをプロに依頼する

※スマホから3分で完了。複数社の提案をじっくり比較できます。


LDK15.1畳を「数字以上に広く」使うための発想

15畳のリビングを広く見せる中庭に面した大きな窓。外の空間と繋がる開放的なリビング。

玄関から入って縦長の長方形タイプであるわが家のLDK。
ここで私たちが最優先したのは、「圧迫感をなくし開放的なLDK空間づくり」でした。

縦長LDKを有効活用するための「壁付けキッチン」

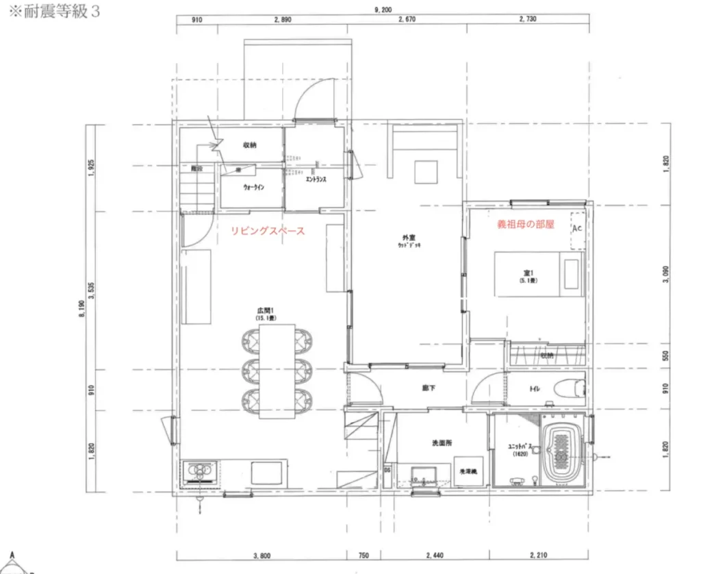
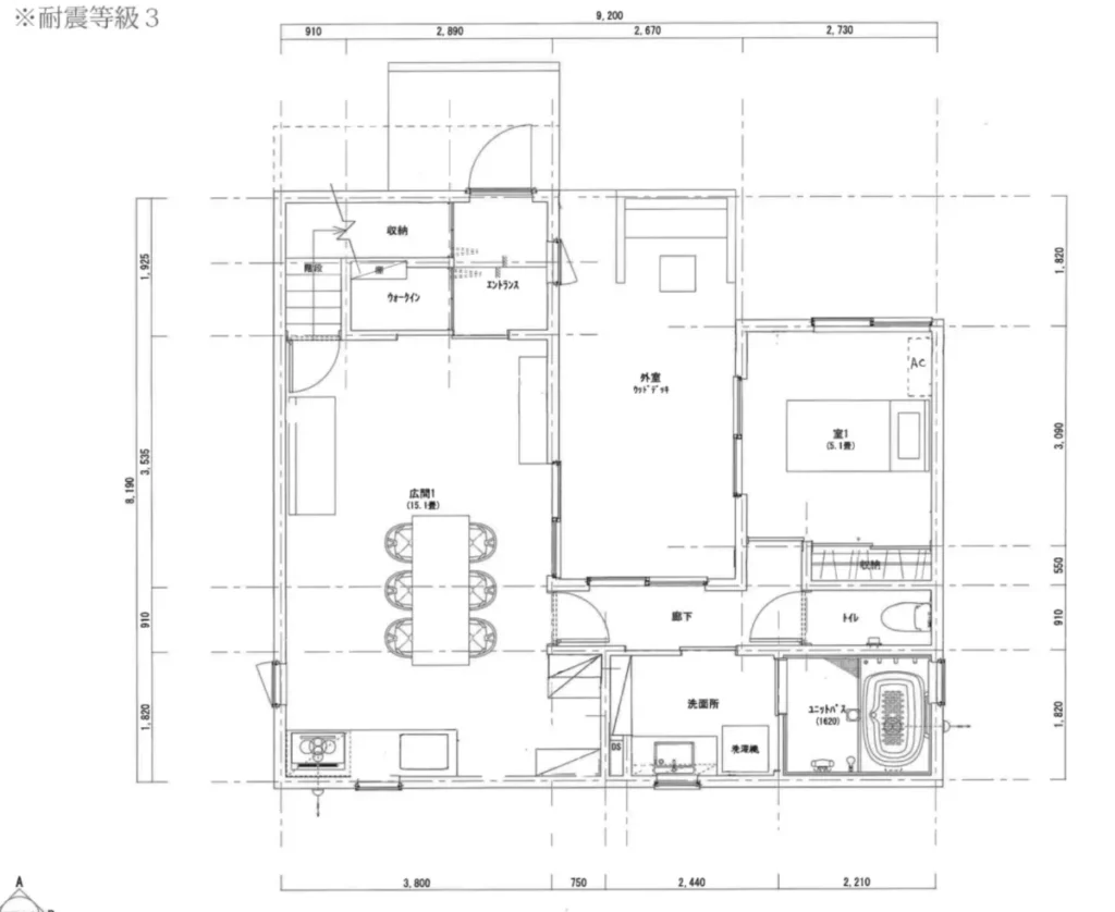
15畳LDKの間取り図面。4人家族+二世帯でも「壁付けキッチン」パントリー、キッチンサイズは2400mm

実際の間取り図面参照

私たちの場合、建てられる広さに制限があり夢のアイランドキッチや対面型キッチンは早々に諦めました。

その代わり家族が長くいるリビング部分のなるべく広く(稼働できる場所を増やす)取れるように壁付キッチンを採用したんです。

ちなみにキッチンサイズは2400mmです。

アイランドキッチや対面型は「キッチン専用のスペース」が必要になるので、LD(リビング・ダイニング)として使えるスペースが削られてしまうのがネックなのと、私たちの暮らし方に合わないと判断しての決断です。

壁つけキッチンのメリットはキッチンスペースとリビングスペースの境界をなくし、部屋全体を一つの大きな空間として使えるようにすることで、視線的圧迫感をなくし狭く感じやすいリビングでも広く見せれる工夫を取り入れました。

壁付キッチンは流行りも含めて賛否あると思いますが、自分たちがどう暮らしていきたいかを軸にきいめることで後悔のしない間取り作りができます。

リビングを広くしたいのか?キッチンスペースを充実させたいのか?あなたの理想はどっち?

収納不足は「1.5畳のパントリー」で解決

パントリー収納で食品ストック・家電・調理器具などをしまう。壁付キッチンの収納不足を解消。

LDKの稼働スペースを増やして視覚的圧迫感を無くして壁付けキッチンにしましたが、最大の弱点が収納の少なさ。

カウンター付きキッチンや対面キッチンは収納スペースが確保できるためキッチン自体をスタイリッシュに見せれてかっこいいですよね。

私たちはキッチン周辺に収納を作らない代わりにキッチン横に約1.5畳のパントリーを設けることでカバーしました。
このパントリーは食品ストックや調理器具だけではなく、電子レンジやトースター、ケトルなども収納できるように設計してもらいました。

手書きによるカラフルなL字型キッチンおよびパントリー空間のパース図。青、ピンク、黄色のマーカーで着色された冷蔵庫、作業台、オープンシェルフが、鉛筆書きのキッチン設備と組み合わさっている。

パントリーのイメージ図面

キッチン上の吊り戸棚は高齢の義祖母や子供たちが使いずらいので設置せず、代わりにキッチン上にパイプ棚とFIX窓を設置して解放感と作業スペースを確保しました。


窓の位置で光と視線をコントロールして「圧迫感」を消す

「15.1畳」を狭く感じさせないために、窓の配置には徹底的にこだわりました。

  • 天井までの大きな窓: 中庭に面した大開口の窓が、外の空間とリビングを繋げます。
  • 複数の窓: キッチン横の腰高窓、キッチン上のFIX窓。多方向に視線が抜けることで、開放感を演出しました。

キッチン上部には細長い不透明のすりガラスタイプのFIX窓は南側からの光を取り入れることで目線を窓の方(上部)に向くよう誘導し壁つけ特有の圧迫感を解消しました。

【合わせて読みたい】コートハウスの裏ザワはこちら

意外と見落とされがちな家具選びもかなり重要で何も置かないと意外と15畳はかなり大きな部屋に見えます。

ですが、ダイニングテーブル・椅子・ソファー・ローテーブル・収納スペース・・・

必要最低限の家具をおくだけでも結構手狭になります。


だからこそ、間取りを作成してある程度確定した段階でどんな家具を置くかも営業担当・設計・インテリア担当などに相談し「その部屋のサイズに合う家具」を頭に入れておきましょうこと。


広さよりも「心のゆとり」を選んだ、二世帯住宅の工夫

今回の家づくりで一番気を遣ったのは一緒に住む義祖母の部屋との距離感です。

別の建築会社では「廊下をなくせばリビングを18畳にできる」提案もありました。

ですが、その間取りだと義祖母の部屋がリビングのすぐ隣。

そしてトイレは玄関横。

設計の説明ではリビング隣接の壁に衣裳ダンスを置けば音は気にならない、玄関近くのトイレは今すごく人気のある間取りでオススメと言われました。

ですが気にしいの私は

「夜、リビングで私たちが盛り上がっていたら、義祖母は気を使って眠れないのでは?」
「義祖母が夜中にトイレに行くとき、私たちがいたら気になるよなぁ」

などなど気になる点が盛りだくさん。

そう考えたとき、私たちは世の中で言われている「リビング18畳以上」の広さよりも家族みんあが変な気を使わないで生活のできる「プライバシーが守れる間取り」を選びました。

【合わせて読みたい】私たちの間取りづくりの詳細はこちら

デットスペースの「廊下」でプライバシーを守る

15畳LDKの間取り図面。4人家族+二世帯でも「壁付けキッチン」パントリー、キッチンサイズは2400mm
義祖母の部屋とLDKの図

デットスペースと言われる「廊下」ですが、視点を変えれば音・振動・視線を物理的にカットするには最高間取りです。

義祖母の部屋をリビングから一番離し、その隣に少し広めのトイレを配置。

廊下には足元に人感センサーライトをつけ、夜間の移動ストレスも無くしました。

生活リズムが全く違う私たち家族と義祖母だからこそ物理的な距離は、心の余裕に直結します。

広い家じゃないからこそ廊下を使ってしっかりプライベートも分けつつ、どことなく人を感じられて寂しさを感じない間取り空間をイメージして作りました。

二世帯といっても親と子ではなく、孫と義孫とひ孫という1世代飛び越えた同居。

だからこそ、私たちも義祖母も「気を遣わずにリラックスできる環境を作る」ことこそが、今回の家づくりで最も大切にしたことです。


失敗しない家づくりは「自分の理想・要望」を理解する

あなたの家づくりの軸はどこにありますか?

  • LDKを広くしたい?
  • 各人のプライバシーを優先したい?
  • 趣味の部屋が欲しい
  • 料理に没頭できてキッチン周りでみんなで食卓を楽しみたい・・・

家づくりは選択の連続です。選択をし続けた結果、あなただけの理想の家が完成します。

どんな家でどんな風に生活したいのか?
まずは徹底的にあなたは何が好き?何が心地よく感じる?何をするのが楽しい?
そんな自分だけの好きをこの機会に理解してあなただけの理想の家づくりを叶えましょう。

自分の好きがわからない人はこちら


自分の好きを間取りに落とし込もう

自分たちにとっての正解は、世の中の流行りや数字上の広さではなく、家族全員がリラックスできる距離感やこんな生活をしたいという理想にありました。

ですが最初からそれに気づけたわけでないです。

複数の会社から異なる視点の間取りを提案してもらい、比較検討したからこそ、迷いなく『あえての廊下』や『15畳のLDK』という答えに辿り着けました。

これから注文住宅を考えてる人、今すでに間取りで迷っている人は、一度プロの視点で『自分たちのためのオリジナルプラン』を書いてもらうのが一番の近道です。

スマホから理想を伝えるだけでオリジナルの提案が届くので、まずは形にしてみることから始めてみませんか?


入力3分で始める家づくりはこちら

\ 好きと理想を伝えることで「わが家の正解」が見えてくる /
あなただけの「理想の間取り」を無料で作成依頼

【無料】プロに間取りプランを提案してもらう

自宅にいながら、複数社の提案をゆっくり比較検討できます。 PR広告

【あわせて読みたい】間取り作りで建築会社に本音を伝えた「究極の要望出し」のプロセスはこちら

コメント

タイトルとURLをコピーしました